– centrum miasta oddalone jest zaledwie o około 1 km,
– w najbliższej okolicy znajdują się szkoły, przedszkola oraz placówki medyczne,
– szybki i wygodny dostęp do SKM oraz komunikacji miejskiej zapewnia komfort codziennego funkcjonowania.
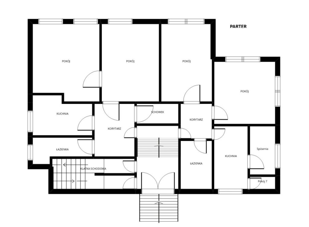
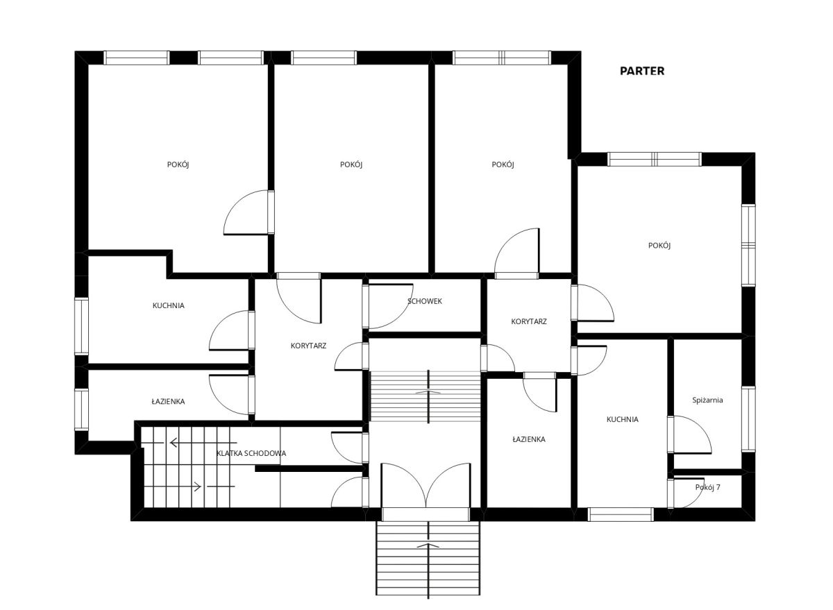
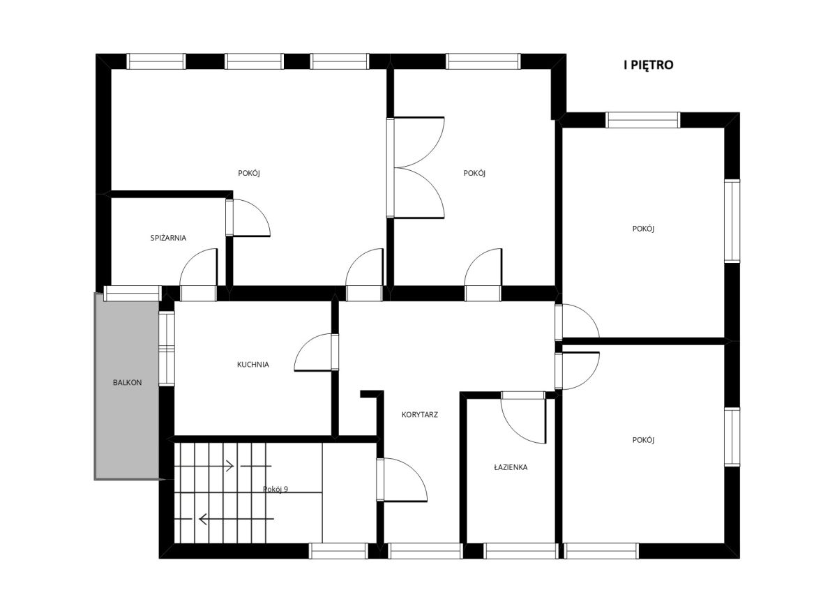
Budynek o powierzchni całkowitej 431,34 m2 (powierzchnia użytkowa 260,75 m2) został funkcjonalnie podzielony na trzy lokale mieszkalne o metrażach: 64,16 m2/ 66,13 m2/ 130,47 m2. Wszystkie lokale posiadają wspólne wejście oraz klatkę schodową, co stwarza szerokie możliwości aranżacyjne – zarówno pod kątem wynajmu, jak i adaptacji na cele inwestycyjne, np. apartamenty, kancelarie czy przestrzeń biurową.
Do dyspozycji właściciela pozostają również części wspólne, takie jak:
– przestronna działka o powierzchni 841 m2,
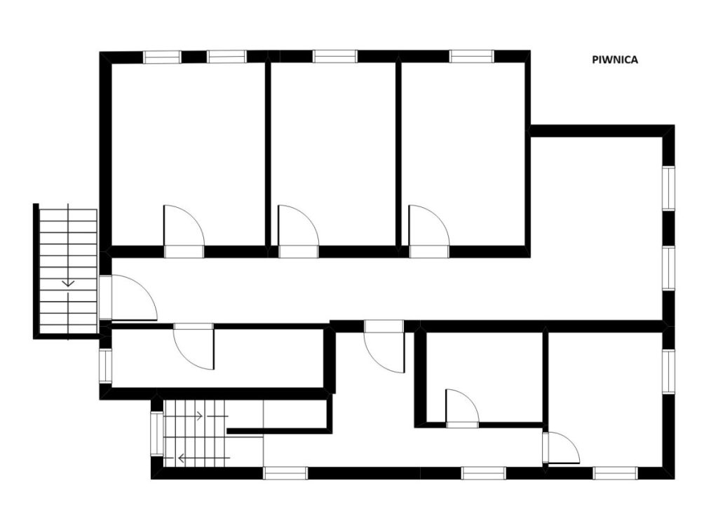
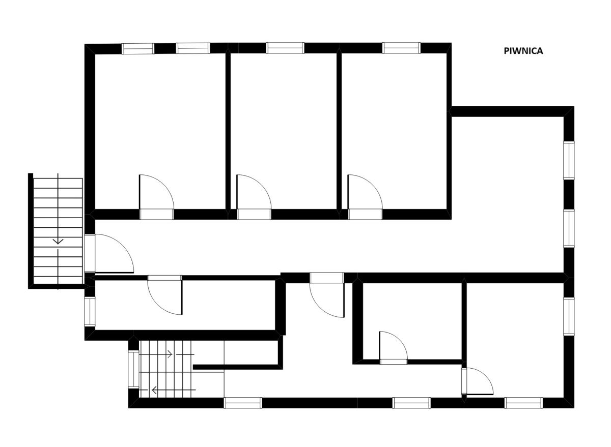
– pomieszczenia piwniczne,
– oficyna,
– klatka schodowa.
Standard i technologia wykonania:
– budynek wzniesiony w technologii tradycyjnej (cegła), co gwarantuje solidność i trwałość,
– drewniana stolarka okienna i drzwiowa, podkreślająca klasyczny charakter nieruchomości,
– zróżnicowane źródła ogrzewania: jeden lokal ogrzewany gazowo, dwa pozostałe wyposażone w piece kaflowe.
Nieruchomość objęta jest ochroną konserwatora zabytków, co podkreśla jej unikalny charakter, ponadczasową architekturę oraz historyczną wartość. To doskonała propozycja dla osób ceniących klimat przedwojennych willi, a jednocześnie świadoma inwestycja z dużym potencjałem.
To miejsce, które daje nie tylko przestrzeń do życia, ale również realną szansę na dochodową inwestycję w jednej z najlepszych lokalizacji Trójmiasta.
Polecam i zapraszam na prezentację!!!
Zapraszamy Państwa do skorzystania z usług biura Stalko Nieruchomości w zakresie pośrednictwa w obrocie nieruchomościami. Współpracując z nami otrzymujesz:
– patronat doświadczonych agentów,
– ubezpieczenie transakcji,
– doradztwo kredytowe i prawne,
– dostęp do sprawdzonych specjalistów: architektów, geodetów, konstruktorów, firm wykończeniowych oraz ekip sprzątających.
– czynności objęte usługami pośrednictwa w obrocie nieruchomościami są usługami odpłatnymi.
Gwarantujemy profesjonalne podejście oraz kompleksową obsługę na każdym etapie procesu zakupu czy sprzedaży nieruchomości.
Niniejsze ogłoszenie nie stanowi oferty handlowej w rozumieniu przepisów Kodeksu Cywilnego i służy wyłącznie celom informacyjnym. Zawarte w ogłoszeniu informacje mogą różnić się od stanu rzeczywistego.







