Szukasz miejsca, które będzie dobrą wizytówką Twojego biznesu od pierwszego dnia?
Ten lokal spełnia wszystkie warunki: świetna lokalizacja, nowy budynek i funkcjonalny układ.
Lokal znajduje się w nowoczesnym budynku z 2025 roku w dynamicznie rozwijającej się części Gdyni – Wiczlino. To rejon z dużym potencjałem, intensywną zabudową mieszkaniową i stałym ruchem klientów.
Najważniejsze atuty lokalu:
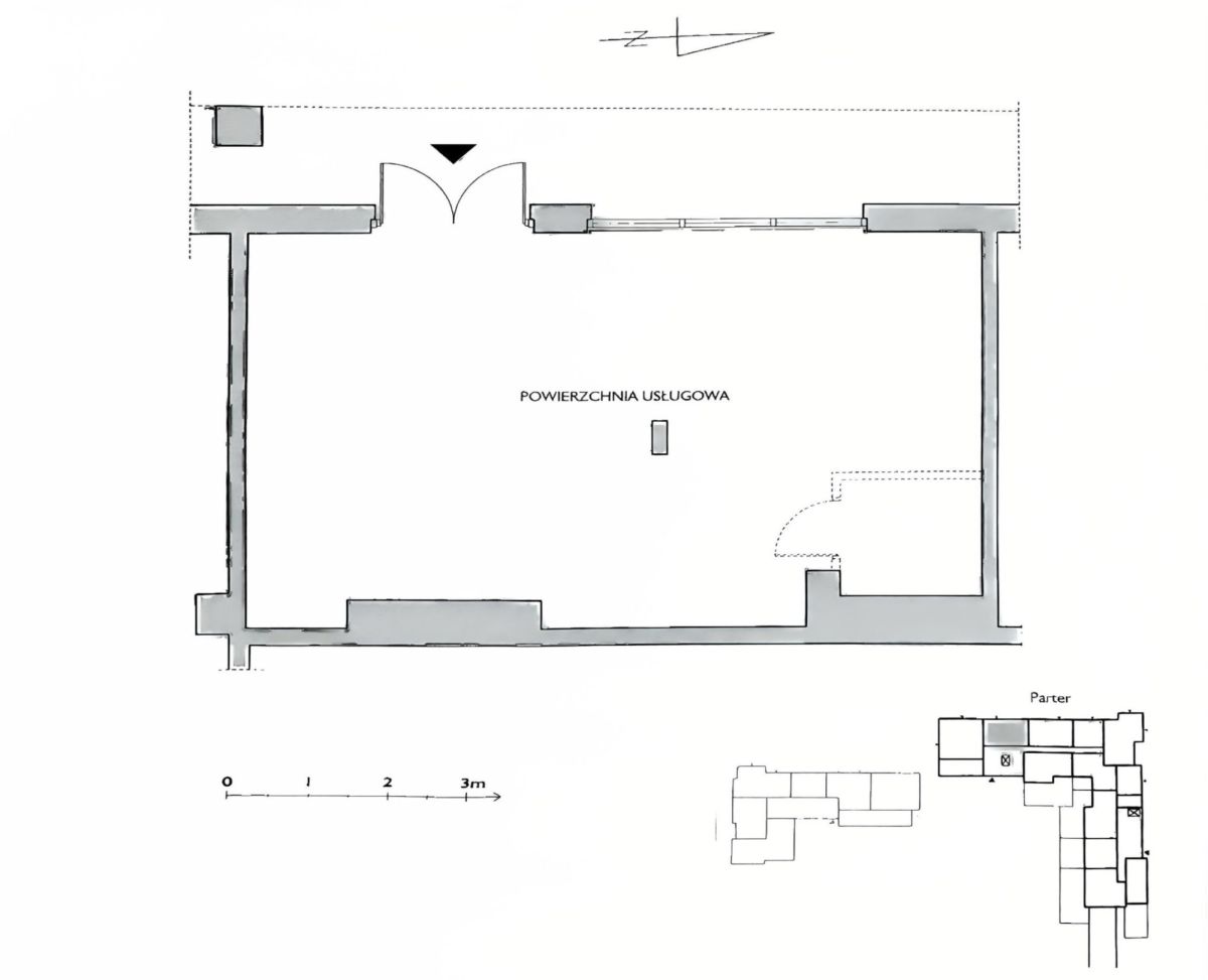
– powierzchnia: 52,22 m² – ustawna i łatwa do aranżacji,
– nowy budynek (2025 rok) – wysoki standard i nowoczesna architektura,
– idealna lokalizacja – doskonała widoczność i dostępność,
– wyprowadzenie pod klimatyzację,
– łazienka z toaletą w lokalu – pełna niezależność,
– uniwersalne przeznaczenie – dopasujesz przestrzeń do własnych potrzeb.
Lokal świetnie sprawdzi się jako
– studio urody,
– butik,
– gabinet (kosmetyczny, medyczny, fizjoterapeutyczny),
– biuro,
– pracownia lub punkt usługowy.
To miejsce, które pracuje na wizerunek Twojej marki od pierwszego dnia.













