Mieszkanie z balkonem zlokalizowane na nowym osiedlu w Rumi.
Kameralne osiedle tworzy kompleks 10 budynków wielorodzinnych, zaprojektowanych z dbałością o najmniejszy szczegół. Nowoczesna architektura, zieleń i plac zabaw zapewnią komfort i wygodę życia codziennego. W najbliższej okolicy znajduje się pełne zaplecze usługowo- handlowe oraz przystanki komunikacji miejskiej. W niedalekiej przyszłości w pobliżu powstanie przystanek SKM. Dojazd do centrum Gdyni zajmuje około 20 minut.
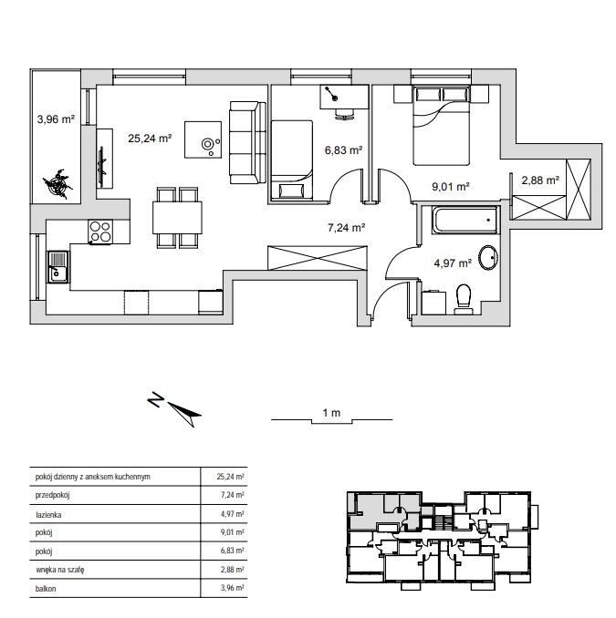
Prezentowana nieruchomość to 3-pokojowe mieszkanie z balkonem w budynku z cichobieżną windą o powierzchni 56,17m2 usytuowane na I piętrze, w skład którego wchodzą:
– pokój dzienny z aneksem kuchennym
– przedpokój
– 2x sypialnia
– garderoba
– łazienka
Pod blokiem ogólnodostępne miejsca parkingowe.
Możliwość dokupienia garażu.
Specyfikacja techniczna budynku z opisem standardu wykończenia:
Nieruchomość wykończona w standardzie deweloperskim.
Materiał budowlany: ściany konstrukcyjne- murowane z bloczka H+H 240mm, wewnętrzne- murowane z bloczka H+H 80 mm i 120 mm; stropy żelbetowe;
wykończenie ścian oraz sufitów wewnątrz mieszkań- tynki gipsowe przygotowane do szpachlowania; posadzki i podłoża w lokalach: wylewki betonowe z izolacją ze styropianu, przygotowane pod ostateczne wykończenie podłóg i glazury; balkony i tarasy: wylewka betonowa; okna i drzwi balkonowe PCV, trzyszybowe; drzwi wejściowe do mieszkań- płytowe wzmacniane; instalacja grzewcza: ogrzewanie miejskie, grzejniki panelowe, w łazience grzejnik rurkowy; wentylacja mechaniczna w kuchni i łazience.
Odbiór budynku przewidziany jest na wrzesień 2026r.
Wysoki standard wykończenia. Atrakcyjne ceny.
Kupujący nie płaci prowizji.
Polecam i zapraszam na prezentację!!!
Zapraszamy Państwa do skorzystania z usług biura Stalko Nieruchomości w zakresie pośrednictwa w obrocie nieruchomościami. Współpracując z nami otrzymujesz:
– patronat doświadczonych agentów,
– ubezpieczenie transakcji,
– doradztwo kredytowe i prawne,
– dostęp do sprawdzonych specjalistów: architektów, geodetów, konstruktorów, firm wykończeniowych oraz ekip sprzątających.
– czynności objęte usługami pośrednictwa w obrocie nieruchomościami są usługami odpłatnymi.
Gwarantujemy profesjonalne podejście oraz kompleksową obsługę na każdym etapie procesu zakupu czy sprzedaży nieruchomości.
Niniejsze ogłoszenie nie stanowi oferty handlowej w rozumieniu przepisów Kodeksu Cywilnego i służy wyłącznie celom informacyjnym. Zawarte w ogłoszeniu informacje mogą różnić się od stanu rzeczywistego.






