Wyjątkowa oferta! Na sprzedaż dom wolo-stojący położony w miejscowości Nowy Tuchom, w spokojnej i kameralnej okolicy domów jednorodzinnych, z bardzo dobrym dostępem do infrastruktury usługowej oraz komunikacji miejskiej.
Nieruchomość typu bungalow usytuowana jest na słonecznej działce o powierzchni 1070 m2. Powierzchnia użytkowa budynku wraz z dwustanowiskowym garażem wynosi 166,32 m2. Poprzez adaptację poddasza, istnieje możliwość uzyskania dodatkowej powierzchni mieszkalnej ( +ok. 160 m2).
Dom został wybudowany w 2019 roku z wysokiej klasy materiałów, z dbałością o detale oraz komfort codziennego użytkowania. To nowoczesna, energooszczędna nieruchomość, niewymagająca nakładów finansowych – gotowa do wprowadzenia.
Budynek wyróżnia się wysokim standardem wykończenia oraz zastosowaniem nowoczesnych technologii zwiększających komfort i bezpieczeństwo mieszkańców:
– instalacja ogrzewania podłogowego,
– rekuperacja,
– instalacja fotowoltaiczna – 14 paneli solarnych,
– monitoring (kamery),
– system alarmowy z czujnikami,
– ogrzewanie gazowe oraz kominkowe,
– zautomatyzowany system nawadniania ogrodu.
Dzięki zastosowanym rozwiązaniom dom jest energooszczędny i ekonomiczny w utrzymaniu.
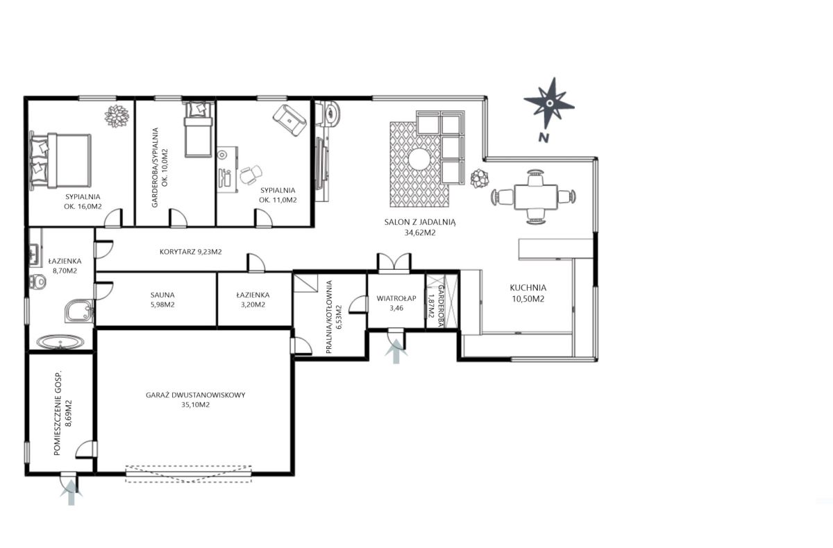
Na powierzchnię nieruchomości składają się:
– przestronny garaż dwustanowiskowy (35,10 m2),
– pomieszczenie gospodarcze na jednoślad, warsztat lub spiżarnię (8,69 m2) – w zależności od potrzeb przyszłych właścicieli,
– wiatrołap (3,16 m2) oraz garderoba (1,87 m2),
– salon z jadalnią (34,22 m2),
– kuchnia (10,50 m2),
– 3 sypialnie (ok. 16,0m2/12 m2/10,44 m2),
– pokój kąpielowy z wanną, prysznicem (8,70 m2) oraz sauną (5,98 m2),
– WC (3,20 m2),
– kotłownia/pralnia (6,53 m2)
Nieruchomość położona jest na dużej, w pełni zagospodarowanej działce o powierzchni 1070 m². Podjazd z zewnętrznym miejscem parkingowym wyłożony jest kostką betonową. Ogrodzona posesja i zadbany ogród z roślinami tworzą przestrzeń zapewniająca prywatność i komfort wypoczynku.
To idealna propozycja dla osób poszukujących nowoczesnego, energooszczędnego domu w wysokim standardzie, w spokojnej lokalizacji oddalonej od miejskiego zgiełku, równocześnie z dogodnym dojazdem do miasta i usług.
Polecam i zapraszam na prezentację!!!
Zapraszamy Państwa do skorzystania z usług biura Stalko Nieruchomości w zakresie pośrednictwa w obrocie nieruchomościami. Współpracując z nami otrzymujesz:
– patronat doświadczonych agentów,
– ubezpieczenie transakcji,
– doradztwo kredytowe i prawne,
– dostęp do sprawdzonych specjalistów: architektów, geodetów, konstruktorów, firm wykończeniowych oraz ekip sprzątających.
– czynności objęte usługami pośrednictwa w obrocie nieruchomościami są usługami odpłatnymi.
Gwarantujemy profesjonalne podejście oraz kompleksową obsługę na każdym etapie procesu zakupu czy sprzedaży nieruchomości.
Niniejsze ogłoszenie nie stanowi oferty handlowej w rozumieniu przepisów Kodeksu Cywilnego i służy wyłącznie celom informacyjnym. Zawarte w ogłoszeniu informacje mogą różnić się od stanu rzeczywistego.



















