Dom dostępny od styczeń/luty 2026r.
Do wynajęcia nowy dom w zabudowie bliźniaczej w miejscowości Warzenko.
To malownicza miejscowość z pięknym, objętym strefą ciszy Jeziorem Tuchomskim, otoczonym lasami i siecią lokalnych dróg nadających się na ciekawe wycieczki rowerowe i piesze. Spokojna okolica z dala od zgiełku miejskiego jednocześnie bardzo dobrze skomunikowana z Trójmiastem:
– 2km do drogi nr 20 Gdynia- Kościerzyna,
– 20km do Gdyni I Sopotu,
– 12km do Gdańska.
Przedszkole i szkoły znajdują się w odległości 3,5km. Delikatesy spożywcze w promieniu 2km.
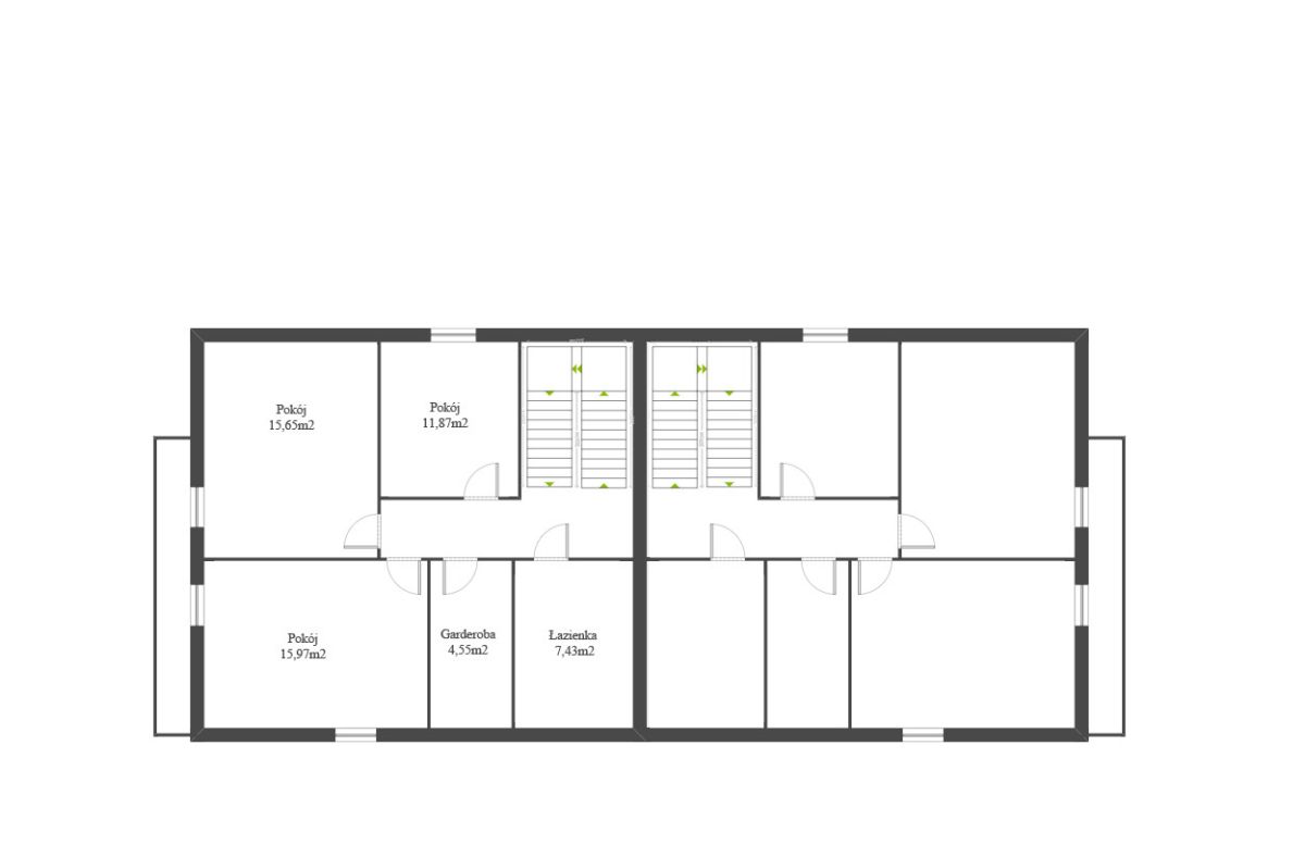
Powierzchnia użytkowa domu: 147 m2 na którą składają się:
Parter:
– wiatrołap- 5,77m2,
– korytarz + klatka schodowa- 18,36m2,
– łazienka – 5,50m2,
– przestronny pokój dzienny + jadalnia – 41m2,
– kuchnia- 13,42m2.
Poddasze:
– korytarz + klatka schodowa- 8,19m2,
– sypialnia 1- 11,87m2,
– sypialnia 2- 15,65m2,
– sypialnia 3- 15,97m2,
– garderoba- 4,55m2,
– łazienka- 7,43m2.
Przemyślany i funkcjonalny rozkład pomieszczeń pozwala na optymalne wykorzystanie przestrzeni domu i bezproblemową aranżację.
Dom umiejscowiony jest na działce o powierzchni 400m2.
Działka zagospodarowana, ogrodzona.
















