Na sprzedaż oferujemy nową, wyjątkową inwestycję – dom o niepowtarzalnej bryle, wyróżniający się nowoczesną architekturą i starannie zaprojektowanymi detalami. Nieruchomość położona jest na słonecznej, ustawnej działce, co gwarantuje doskonałe doświetlenie wnętrza oraz komfortowe warunki do życia i wypoczynku.
Budynek:
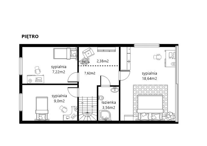
Nowoczesna forma architektoniczna z dużymi przeszkleniami, które otwierają wnętrza na otoczenie i zapewniają wyjątkową jasność pomieszczeń. Dom o powierzchni 110 m2 jest wykonany w wysokim standardzie wykończenia, z dbałością o każdy detal. Funkcjonalny układ pomieszczeń pozwala na swobodną aranżację zgodnie z potrzebami przyszłych mieszkańców. Budynek ogrzewany jest piecem gazowym oraz dodatkowo wyposażony jest w ogrzewanie podłogowe, co zapewnia komfort cieplny i energooszczędność.
Działka:
Słoneczna oraz zagospodarowana. Zaaranżowano ogród oraz taras, idealne na strefę relaksu z możliwością korzystania z widoków kameralnej okolicy w otoczeniu terenów zielonych. Przed budynkiem znajdują się miejsca parkingowe dla mieszkańców.
Media i infrastruktura:
Wszystkie media gminne (prąd, woda, kanalizacja, gaz).
wygodny dojazd oraz dostęp do infrastruktury miejskiej.
Lokalizacja:
Orle, w bezpośrednim sąsiedztwie Wejherowa i Bolszewa, doskonała komunikacja zarówno z centrum Wejherowa, jak i Trójmiastem. W pobliżu znajdują się szkoły, sklepy, punkty usługowe oraz tereny zielone.
Atuty inwestycji:
– nowoczesna, unikatowa bryła z przeszkleniami
– wysoki standard wykończenia
– ogrzewanie gazowe z systemem podłogowym
– słoneczna działka w spokojnej i dobrze skomunikowanej lokalizacji
– wszystkie media gminne
– nieruchomość idealna dla osób ceniących nowoczesny design, komfort i funkcjonalność
Polecam i zapraszam na prezentację!!!
Zapraszamy Państwa do skorzystania z usług biura Stalko Nieruchomości w zakresie pośrednictwa w obrocie nieruchomościami. Współpracując z nami otrzymujesz:
– patronat doświadczonych agentów,
– ubezpieczenie transakcji,
– doradztwo kredytowe i prawne,
– dostęp do sprawdzonych specjalistów: architektów, geodetów, konstruktorów, firm wykończeniowych oraz ekip sprzątających.
– czynności objęte usługami pośrednictwa w obrocie nieruchomościami są usługami odpłatnymi.
Gwarantujemy profesjonalne podejście oraz kompleksową obsługę na każdym etapie procesu zakupu czy sprzedaży nieruchomości.
Niniejsze ogłoszenie nie stanowi oferty handlowej w rozumieniu przepisów Kodeksu Cywilnego i służy wyłącznie celom informacyjnym. Zawarte w ogłoszeniu informacje mogą różnić się od stanu rzeczywistego.








