Wyjątkowa działka z linią brzegową, dostępem do jeziora, granicząca z lasem! Wydane PNB, projekt w cenie.
Działka położona w Gdańsku- Osowie. W najbliższej okolicy zabudowa jednorodzinna i las, w promieniu 2,5km: szkoła podstawowa, basen a także liczne punkty handlowo- usługowe.
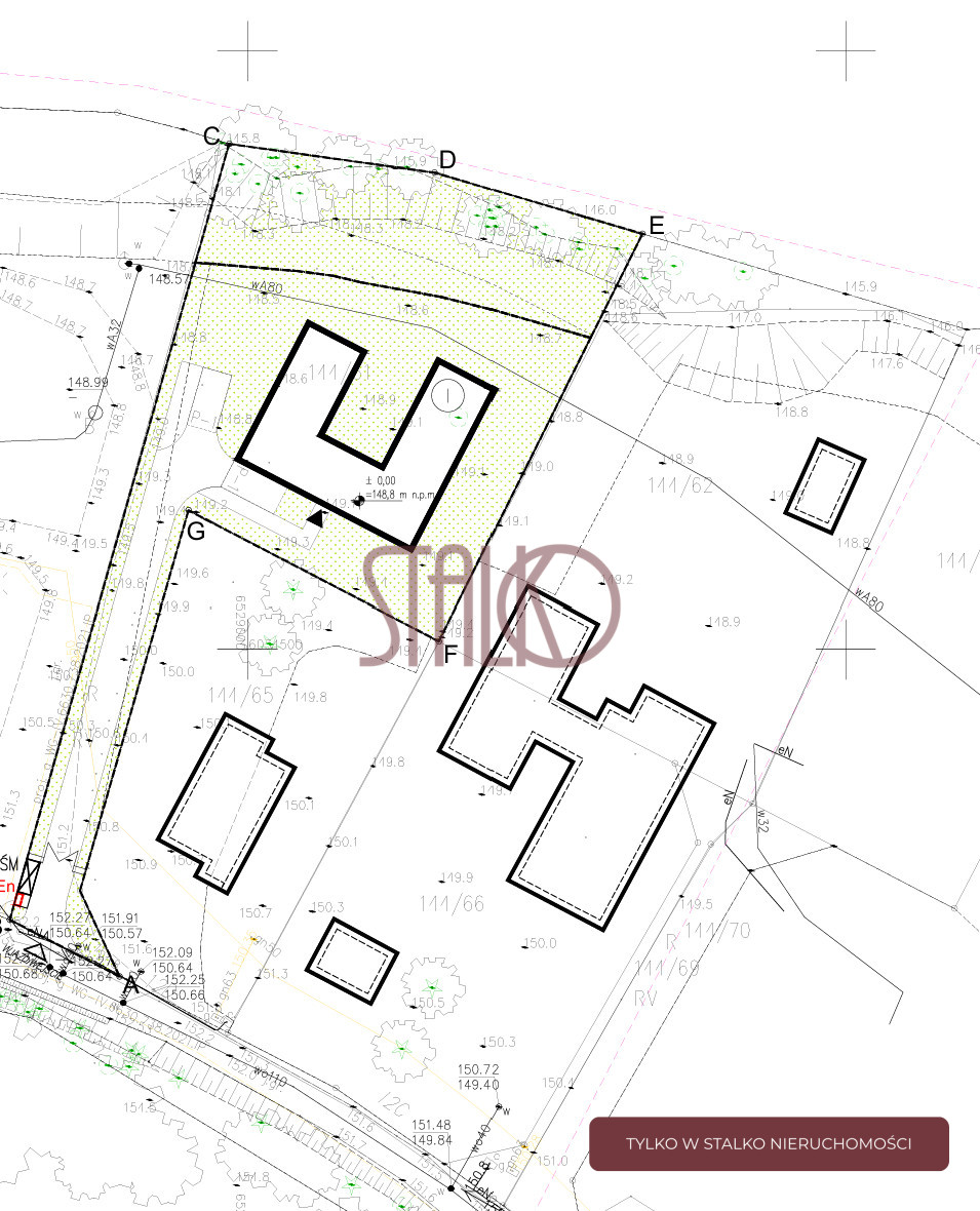
Działka mieszkaniowa o powierzchni 1293m2.
Uzbrojenie: gaz i prąd przy granicy działki, woda na działce, w drodze światłowód.
Idealna propozycja dla osób chcących obcować z naturą i niekoniecznie przenosić się poza aglomerację miejską.
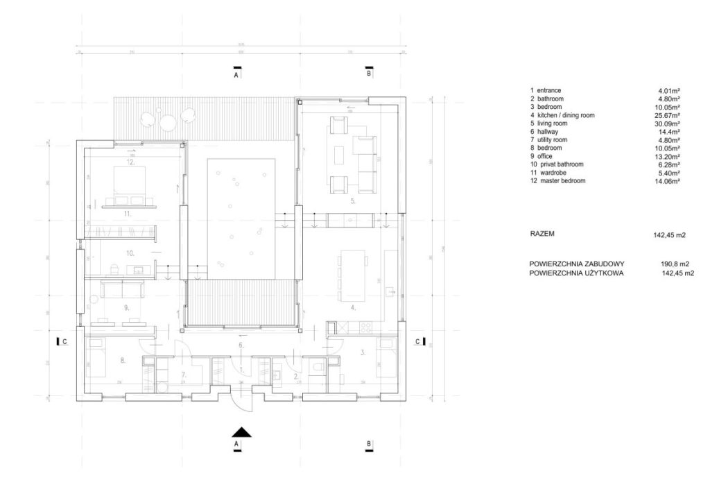
Doskonała lokalizacja. W cenę wliczony indywidualny projekt domu parterowego wraz z pozwoleniem na budowę. Dodatkowo istnieje możliwość zagospodarowania terenu przy jeziorze: budowa pomostu, kuchni letniej, altany.
Teren objęty MPZP
– powierzchnia zabudowy 20%
– powierzchnia biologicznie czynna 70%
– intensywność zabudowy max. 0,3m
– wysokość zabudowy max. 9,0m
– forma zabudowy- jednorodzinna/dwulokalowa
– kształt dachu- stromy.
Polecam i zapraszam na prezentację!!!
Zapraszamy Państwa do skorzystania z usług biura Stalko Nieruchomości w zakresie pośrednictwa w obrocie nieruchomościami. Współpracując z nami otrzymujesz:
– patronat doświadczonych agentów,
– ubezpieczenie transakcji,
– doradztwo kredytowe i prawne,
– dostęp do sprawdzonych specjalistów: architektów, geodetów, konstruktorów, firm wykończeniowych oraz ekip sprzątających.
– czynności objęte usługami pośrednictwa w obrocie nieruchomościami są usługami odpłatnymi.
Gwarantujemy profesjonalne podejście oraz kompleksową obsługę na każdym etapie procesu zakupu czy sprzedaży nieruchomości.
Niniejsze ogłoszenie nie stanowi oferty handlowej w rozumieniu przepisów Kodeksu Cywilnego i służy wyłącznie celom informacyjnym. Zawarte w ogłoszeniu informacje mogą różnić się od stanu rzeczywistego.









